On a hill, panoramic position, large renovated farmhouse (many works were carried out 2 years ago) with 24,000 square meters of adjacent land in a single block and completely fenced.
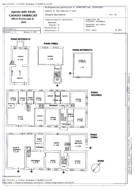
The house consists of a cellar (perfectly renovated! Suitable for a tasting room) of 55 square meters and two floors above ground of 260 square meters each!
On the ground floor we find a large kitchen, a large living room (even suitable for a possible restaurant), 2 large bedrooms, warehouse and bathroom / laundry room, the heating is new underfloor; on the first floor there are 10 large bedrooms, 3 new bathrooms and a large bright living room, the heating is with cast iron radiators. The windows are partially new on the ground floor and the others however with double wooden windows very well preserved.
In addition to the residential building there is also another building with a ground floor intended for a garage, perfectly paved and currently used as a tavern/clearance room of 42 square meters, same size for the clearing room in the basement.
The house is immediately habitable and can be easily divided into 2 or more real estate units and would be perfect for a possible accommodation destination, the house is fenced, with two driveway access gates, the space around is paved with interlocking and there is also a bowling green.
It is truly an important and very interesting property!
Energy class: E
Reference: 580.san.damiano
Price: € 580 000
Living area: 575 m2
Land: 24000 m2
Bathrooms: 4
Bedrooms: 10
Living area: 575 m2
Land: 24000 m2
Bathrooms: 4
Bedrooms: 10
Nearby cities:
Asti 15 km
Turin 50 km
Genoa 140km
Milan 130 km
