A Piea vendesi bella e comoda casa abitabile subito, accessibile dalla strada provinciale, con circa 500 mq di terreno/giardino circostante pianeggiante.
La casa costruita a fine 800, è disposta su due piani fuori terra con un bellissimo porticato aperto al piano terra di 60 mq. fruibile dal giardino e dalla casa, utilizzabile come ricovero auto/moto e zona pranzo e svago in estate.
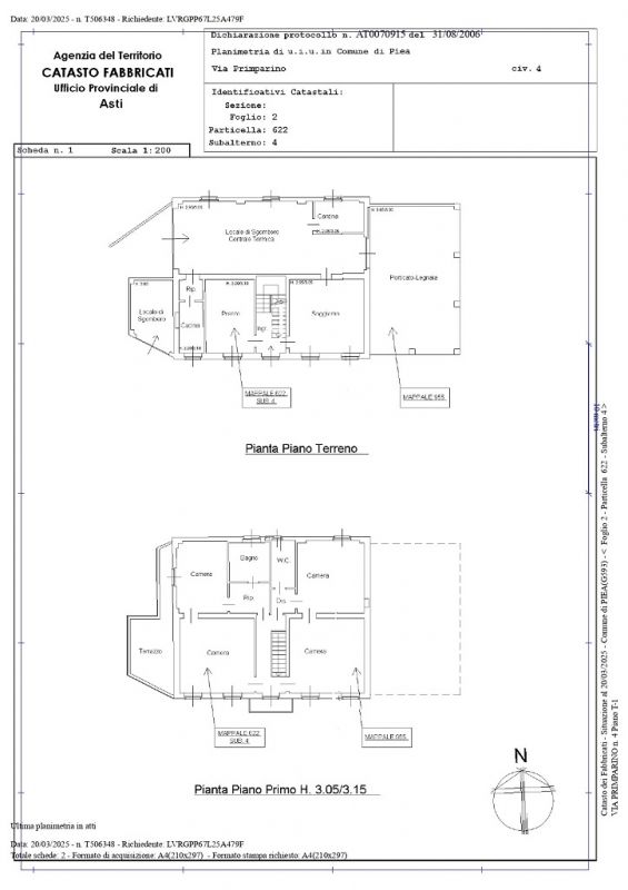
Al PIANO TERRA troviamo una parte abitabile composta da cucina con sala da pranzo, un ampio soggiorno e le scale che portano al piano primo per un totale di mq. 60 netti; sul retro abbiamo un locale garage/magazzino ampio per altri mq. 60 netti; dal esterno un locale di sgombero di mq. 13,00 e il porticato prima citato.
Al PIANO PRIMO abbiamo una zona abitabile molto ampia, di circa mq. 120,00 composta da 4 ampie camere da letto, 2 bagni e disimpegni oltre un terrazzo di circa 20 mq.
Classe energetica: F
Riferimento: 98.piea
Prezzo: € 98 000
Superficie: 242 m2
Superficie: 242 m2
Camere da letto: 4
Bagni: 2
